15OCT 2013
© Tongji University Team More images and the team’s description after the break.Spatial Logic
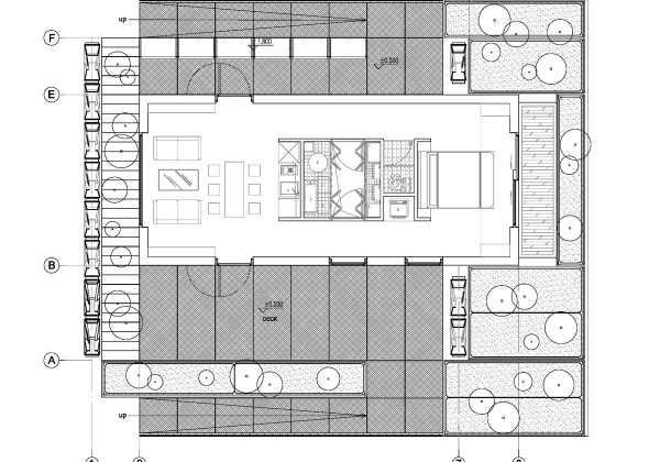
By creating physical boundaries from the layering of the program, three layers emerge. The three layers of the skin separated the entire house into four spaces: the outer space, the semi-open space, the enclosed space and the inner courtyard space which are supported by unique strategies.1.
© Tongji University Team Semi-open Space
The semi-open space is mainly surrounded by the composite timber skin, which unites the solar energy, ventilation, and shading components with vertical greenery on rhombus frames.
- The roof components include solar tracking PV panels and shading system.
- The west elevation of the house combines thin film solar cells and vertical greenery. The size of the holes varies due to the wind pressure on the elevation which enriches the semi-open space creating an eco-transition between nature and interior space.
© Tongji University Team
- The wetland water system under the open deck plays an important role in enhancing the environmental quality
- The mist spraying system creates comfortable and pleasing atmosphere for various events as well as helping cool the wind blowing through the living area.2. Enclosed Space
The enclosed space covers the area of 55.8 m2 and includes almost all functions of a house.
© Tongji University Team With the basic idea of flowing space, these different parts of the enclosed space are organized freely so they’re few doors and walls with the enclosure of living area and the visitors could walk around without sight barriers.
3. Inner Courtyard
The courtyard plays a vital role in balancing the interior and the exterior. Housing the ‘active’ equipment and the electric room it forms the central functional space of the house. The courtyard also acts as a ventilation and light-well, bringing the outside environment into the deepest recesses of the house, creating a dimensional shift from the exterior to the interior.
© Tongji University TeamPara Eco House / Tongji University Team
12NOV2012 by Alison Furuto Sustainability Madrid Spain Tongji University
35
Share on email
© Jia Dongfang
Designed by the Tongji University Team, the “Para Eco House” combines both parametric and ecological strategies into the logic of the architectural language used in the house design. By using both “passive” and “active” energy systems, they go beyond the functional and environmental requirement to create a paradigm for a low carbon future. The concept of creating a multi-layer skin emerges from a combination of Dao theory in eastern philosophy and the theories of Michel Foucault in western thought, especially the ideas of autonomy in architecture. More images and the team’s description after the break.
© Tongji University Team
© Jia Dongfang
Spatial Logic
By creating physical boundaries from the layering of the program, three layers emerge. The three layers of the skin separated the entire house into four spaces: the outer space, the semi-open space, the enclosed space and the inner courtyard space which are supported by unique strategies.
© Jia Dongfang
1. Semi-open Space
The semi-open space is mainly surrounded by the composite timber skin, which unites the solar energy, ventilation, and shading components with vertical greenery on rhombus frames.
© Tongji University Team
- The roof components include solar tracking PV panels and shading system.
- The west elevation of the house combines thin film solar cells and vertical greenery. The size of the holes varies due to the wind pressure on the elevation which enriches the semi-open space creating an eco-transition between nature and interior space.
- The wetland water system under the open deck plays an important role in enhancing the environmental quality
- The mist spraying system creates comfortable and pleasing atmosphere for various events as well as helping cool the wind blowing through the living area.
© Tongji University Team
© Jia Dongfang
2. Enclosed Space
The enclosed space covers the area of 55.8 m2 and includes almost all functions of a house. With the basic idea of flowing space, these different parts of the enclosed space are organized freely so they’re few doors and walls with the enclosure of living area and the visitors could walk around without sight barriers.
© Tongji University Team
3. Inner Courtyard
The courtyard plays a vital role in balancing the interior and the exterior. Housing the ‘active’ equipment and the electric room it forms the central functional space of the house. The courtyard also acts as a ventilation and light-well, bringing the outside environment into the deepest recesses of the house, creating a dimensional shift from the exterior to the interior.
© Jia Dongfang
Fabricating the Skin
The Para Eco House utilizes a multi-layer skin solution for the family home – an energy responsive skin outside, an environmental protective skin in the middle, and a courtyard skin in the heart.
© Tongji University Team Because of this separation, different ecological strategies are required and through the combination of active and passive systems the best solutions are found.1. Energy Skin
The energy responsive skin outside mainly consists of lattice frame with parametric components and solar system on the roof.
- Parametric Components
The facade system includes solar energy gathering, shading, vertical greenery, wind cooling, irrigation and shading.
© Tongji University Team
- Roof Solar System
The solar panels are rotated and placed in rows, along the calculated profile of the exterior skin maximizing the performance of the panels. The movement of the dynamic solar system is controlled by computer algorithms.2. Thermally Controlled Skin
The enclosing skin of the living space is composed of VIP thermal insulation material and XPS thermal insulation board and fragments of newspaper.
© Tongji University Team The double layers of thermal insulation ensure an outstanding performance in enhancing the efficiency of energy.
3. Courtyard Skin
The effects of courtyard skin are mainly revealed through the attached equipment. The courtyard skin is the enclosure of smart boxes so it does centralize the most significant facilities.
© Tongji University Team With the courtyard skin, the house could run more efficiently and intelligently..
© Tongji University Team
© Tongji University Team
© Tongji University Team
© Tongji University Team
© Tongji University Team
© Tongji University Team
© Tongji University Team
© Tongji University Team
© Tongji University Team
© Tongji University Team
© Tongji University Team
© Tongji University Team
© Tongji University Team
Para Eco House / Tongji University Team
Posted in Events_Interviews - Events_Interviews by * FORMAKERS
Designed by the Tongji University Team, the “Para Eco House” combines both parametric and ecological strategies into the logic of the architectural language used in the house design. By using both “passive” and “active” energy systems, they go beyond the functional and environmental requirement to create a paradigm for a low carbon future. The concept of creating a multi-layer skin emerges from a combination of Dao theory in eastern philosophy and the theories of Michel Foucault in western thought, especially the ideas of autonomy in architecture.Comments
No comments
Sign in »


